最新公告:

新银河是诚信为本,市场在变,我们的诚信永远不变...

UG环球|官方网站-首页

咨询热线

400-123-4657

行业资讯

当前位置: 首页 > 新闻动态 > 行业资讯

2  水下封堵技术

添加时间:2024-01-16

/

□北京建工路桥集团有限公司许世明矫志丹范奎王少杰

摘要:针对城市地下排水管线维护的困难,特别是针对长期存在积水且无法引流疏干的管道维护及接驳的难题,本文介绍的水下封堵的实践,为城市地下排水管线的维护提供了一个经济可行的办法。

前言

随着时代的发展,城市的规模以及人口的数量直线上升,城市配套设施也得到了飞速发展。地下排水(雨、污水)管道作为城市正常运行的必要配套设施,随着城市的扩改建,必须进行同步提升,才能满足城市正常运行的需求。在这个过程中,地下管道的维护以及新旧管道的接驳等工作量大大增加,特别是部分老旧管道下游排水设施不完善,存在积水且没有闸门无法疏干等情况,给管道的维护和建设造成了一定的困难。

地下排水管道的维护以及接驳,通常需要无水作业,施工时还需要保证主排水管道的正常运行,所以常规的施工方法是使用污水泵进行地面引流,这样做的限制条件是水流不能过大、就近有可导流的下游,但当管道流量较大时,引流实施困难,施工成本较高,特别是当大部分管道位于现况道路以下时,引流便会相当困难,且会影响正常的社会交通,并极易造成二次污染。

水下封堵技术,就是通过潜水人员水下作业,使用特种砂浆完成管道的封堵砌筑,待砂浆达到强度后,将井内的少量存水抽尽,即可达到无水作业的条件。这种做法经济成本较低,但需要施工人员穿戴潜水服,在排水管道内或井内水下作业,由于空间狭小,风险较大,因此在施工过程中,必须具备完善的安全措施。

1 样本工程概况

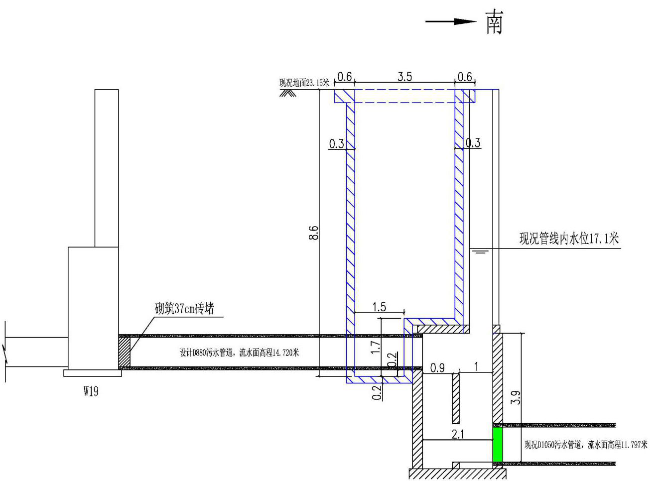
北京某地下管线工程污水管道需在预留接入检查井(样本污水勾头井)内勾头施工,勾头井与现状排污干管相连,现状井井深11.4米,长年水深5.3米,并且与污水处理厂排水口水位齐平,井内下游管径D=1050 mm,井内不具备抽排水条件。

工程新建上游接入管道管径D=880mm,采用顶管法施工。新建管道已完成,等待勾头。(如下图所示)

污水水管_污水管道日记_污水厂管道

样本勾头施工情况示意图(单位:米)

2 水下封堵技术2.1 主要施工流程

前期调查(勾头井参数、水位、水下情况、下游情况)→方案的确定和完善→施工准备(专业技术交底、情况模拟、特种砂浆制配、模拟试验)→水下砌筑→勾头井内抽水→实施勾头

2.2 前期调查情况

因水下封堵的整个施工工程均在水下一个狭小的有限空间内进行,且污水透光性很差,作业过程可见度极差,因此对作业区以及上下游的情况调查,是整个工程方案制定且顺利进行的基础。

经过向现况污水样本检查井原施工方了解及查阅竣工资料,检查井的井型是:内净空长2.1米,宽1.6米,井室高3.9米,为端头井,下游连接管为D1050钢筋混凝土管,与主干道下污水管道相连,并最终通过排污干管,并排至污水处理厂。

此段污水管线及下游排污干管常年积水较深,经过一周的观察,W20#检查井为端头井,井深11.353米,水深约5.3米,上下浮动不大,无明显水流,井底存在少量淤泥,下游排污干管管径为D1600,高峰期水流速度达到300立方米/h,水位与样本井内水位基本相同。

2.3 实施方案选择

因为样本检查井内积水较深,且与排污干管相连,直入污水厂,沿线无闸门,水量极大,且下游管道位于城市主干道之下,不具备实施常规的引流办法的条件和价值,经组织多次专项施工方案讨论,结合南方水资源丰富地区水下砌筑思路,最终得出水下砌筑封堵试行思路方案:

2.3.1 人工潜水施工

针对现场情况,砌筑管堵挡水是解决接入问题的关键。由于水头高,无法引流排空,因此考虑借鉴以往坝体检修、水下管道检修以及特殊井内施工常用的人工潜水方式,此处封堵可采取水下施工。

2.3.2 水下封堵结构施工

由于管径大、水头压力高,无法使用橡胶充气堵,必须采用刚性封堵。结合在富水地层、流砂层暗挖过程中,常用到的土壤固化处理的工法,以及南方富水地区带水砌筑等工法,综合理论,提出水下砌筑,起到封堵闭水作用。

2.3.3 特种砂浆的调制

砌筑过程中,结合材料是水下砌筑的根本,如何让砌筑材料水下不散是关键。经组织相应专家讨论,根据特种混凝土的早强、孔隙自密实等特性,结合将静态水流局部水体粥样化的方式,经多次试验论证,并经专家指导,最终试配出符合水下砌筑用的特种砂浆。相关数据如下:

样本:绿色液体

固含量:42.8%

比重:1.26g/cm3

PH值:12.5

碱含量:7.14%

三氧化二铝含量:0.14%

凝结时间如下:

掺量

初凝

终凝

4%

5%

95min

6%

63min

2.4 施工准备

水下封堵的最主要风险点是作业人员的安全,同时水下作业的质量控制也是工程顺利进行的必要条件。本次水下作业空间狭小,位于地下的污水管道内,能见度极差,需根据水下封堵的特殊性,做好施工前的充分准备。

2.4.1施工人员准备

为减轻水下作业人员的心理压力,需配备2名潜水作业人员换班作业。作业人员必须具备潜水作业经验,且身体健康,有专业资格证书,工作前进行严格的交底培训,并在模拟环境中试工作。

地上需配备如下人员:

通讯员:负责与水下作业人员沟通,并传达项目技术人员的作业指导;

设备调试人员:负责设备的看护、确保输氧设备正常运行;

污水水管_污水厂管道_污水管道日记

砂浆制作员:负责特种砂浆的制作;

力工:负责将地下材料传递给水下作业人员,将水下作业人员下放到井下及提升到地面。

医护人员:对下井人员进行下井前身体检查及出井后身体检查。

应急处置人员:根据编制的应急预案,如出现问题,及时响应和处理。

2.4.2 材料设备准备

潜水设备3套,密封式潜水服,头盔具有相应的抗水压能力。

长管呼吸器及供养设备:与潜水服连接,提供氧气。

7.5kw发电机一备一用。

砌筑材料、特种砂浆原材料等。

2.4.3 现状井内情况调查

结合前期了解的情况,安排潜水员下井调查,具体包括:淤泥厚度、井内型式、水下能见度情况、封堵处管道情况及位置等。并将数据整理成册,结合工程资料,完善详尽的施工方案。

2.5 水下砌筑封堵

2.5.1施工流程

污水厂管道_污水管道日记_污水水管

2.5.2设备调试、下水作业前准备

检查输氧系统:首先对输氧设备长管呼吸器进行目测检查,确定无异常后,将输氧管末端与潜水服头盔进气孔相连,运行输氧设备,检查头盔内出气是否正常,检查输氧管道是否存在漏气的部位,检查输氧管长度是否够用,本工程输氧管长度为20m。

目测检查潜水服,要求无磨损、孔洞等,头盔与潜水服连接处密封垫完好、无变形。

检查通讯系统:本工程采用有线通讯,信号线长15m,检查信号线是否有损坏,通讯声音是否清晰。

设备穿戴:设备检查完毕后,将信号线和输氧管绑扎成一束,与潜水服连接好,潜水员穿戴潜水服,佩戴安全带,四根长约15m专用绳均匀固定在潜水员的安全带上,潜水员上下井口,均由四名工人配合进行。

试水调试:潜水员下水后,在水面下静止3~5min,检测潜水服的密封性完好后,下潜至井底,对输氧速度、通讯效果进行调试,确保在最佳状态下进行水下作业,然后由工人将潜水员拉上地面准备正式工作。

2.5.3水下管堵砌筑

水下作业时间应挑选在水位变化最小的时间段进行。本工程管堵位于水下5.3米,勾头时承受水压力为50KN,管堵采用特种砂浆砌筑非烧结页岩砖,管堵厚0.5m。

潜水员到达井底后,首先熟悉水下情况,找清方位,确定管堵砌筑位置,并随时将水下情况向地面技术人员汇报。

将砌筑管堵部位的淤泥等清理干净,然后通知地面人员传递材料。非烧结页岩砖采用吊篮传递,特种砂浆在地面拌制好后,使用铁桶传递。在材料传递时,地面通讯员提前通知潜水员避开井口位置。

第一桶特种砂浆传递到井底后,将其倾倒至管堵砌筑部位,然后摊开,厚度不小于2cm,摊开宽度略宽于管堵厚度,然后在砂浆上铺设砖料并轻轻挤揉,保证砖与砂浆良好结合。在底层砖砌筑完成后,将特种砂浆倾倒在砖面上,然后进行抹挤揉,确保砖缝砂浆饱满。整层砖缝填充饱满后,继续将传送的特种砂浆倾倒在砖面上摊平,厚度2cm,然后铺设砖料并挤揉。按此方法,采用一丁一顺的砌筑形式,逐层砌筑。上述工作均需模拟训练多次成功后方可实施。

管堵最后封口,使用特种砂浆将封口处填充饱满,可添加少量碎砖块。

特种砂浆凝固速度较快,60min即达到初凝,因此砂浆应随用随拌制。

根据水下作业不可见的特点,在砌筑时可适当加大特种砂浆的用量,确保砌筑质量。

2.6 管堵质量检查

特种砂浆24h即可达到100%强度。在管堵砌筑完成后24h,开始抽水,抽水速度应平缓,在抽水过程中观察井内水位下降变化情况。当井中污水抽尽后,在地面听不到明显水声,观察4小时无变化或有极少渗漏后,方可下井检查。检查人员必须身着潜水服,以免出现意外。检查管堵有无明显漏水点及管堵强度,如强度合格但有局部渗漏点,可采用堵漏灵处理,如强度有问题,可身着潜水服进行处理。管道勾头施工需约5天时间,施工期间,需安排24h看护人员进行监测,并在井内备好抽水设备。

3 安全措施

水下作业危险性较大,必须采取措施做好安全保护,切忌麻痹大意。

3.1 水下作业对潜水设备、输氧设备、通讯设备等依赖性很大,作业前要对各种设备进行仔细检查,确保其无故障、无损坏,入水后对设备进行调试检测,一切正常后方可潜水作业。

3.2 通讯信绳、输氧气管及安全绳由专人持管,绳、管不得离手;

3.3 潜水员在整个潜水过程中,随时保持警惕,并严格听从地面指令;

3.4 下水施工前需由专门保健医生做心理疏导,并经严格的模拟试验;

3.5潜水作业时间较长,须换班作业,每名潜水员在水下作业不得超过30分钟;

3.6潜水员在潜水及作业的过程中,如发生异常感觉或不适,应迅速通知地面人员,尽快回到地面检查休息;

3.7因地下空间狭小,下潜、上升过程中,潜水员需在地面人员的协助下,缓慢进行,并保持与地面通讯,随时汇报情况;

3.8在浊水下前进时,应先伸手向前探摸,以保护目镜;

3.9严禁在水下解脱信绳;

3.10水下作业完毕,上升前必须提前报告地面,经同意出水后,方开始离底上升;

3.11潜水作业时,长管呼吸器必须有专人看守,保持设备正常运行,一旦发现异常,立即通知潜水人员和井上作业人员,潜水员马上停止施工,离开检查井上到地面,在未查出设备异常的原因和设备正常之前,不得下井作业。

4 优缺点分析

通过对施工过程中的全程参与及工后分析认为,采用水下封堵技术,解决了现状排污管道污水引流的问题,达到无水作业的要求,具有大幅减少抽水量、对周边环境影响小、相对低成本等优点。以本工程为例,抽水量仅15m³左右,相对成本降低了80%。

但因水下封堵整个作业过程均在水下进行,危险系数较大,需做好一切准备工作及安全保护措施,同时因水下不可见的特点,施工质量把控难度较大,对施工人员的素质要求较高,极易造成封堵失败,返工的情况。

5 结论

本工程顺利解决了排水管道勾头施工中引流困难、高成本等难题,低成本、低影响的完成了无水作业的要求,整个工程均在可控的情况下顺利实施,取得了良好的效果,对以后类似的工程有着极大的借鉴意义。

参考文献

《水下工程》2006年1月中国电力出版社出版作者:陈惠欣

《混凝土外加剂》2003年8月陕西科学技术出版社作者:何廷树

联系我们

电话:400-123-4657

传真:+86-123-4567

地址:浙江 温州市 温州大道欧江大厦26188号

邮箱:admin@fago288.com

电话:400-123-4657 传真:+86-123-4567 地址:浙江 温州市 温州大道欧江大厦26188号
版权所有:Copyright © 2002-2025 环球ug官网网址 版权所有 非商用版本 ICP备案编号:粤IP**********